

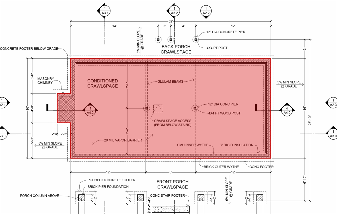
Copied from Foundation Plan at 1/4"=1' Scale:

Pasted on Cover Page with Custom Scale:

How can I get access to test this. Would need this to do takeoff on units page plan and paste over to floor plans
We just deployed this to our WWW servers just a few minutes ago. Is it working properly for you?
Perfect this is exactly what I needed. Another request, before copying the takeoff i group the conditions together to work as one item. What I'm incountering now is that the floor plan layout is off level and I would need to slightly rotate the copied takeoff to line it up. Is there a feature to be able to do this.
It may take a little bit of adjustment but you can try some of our rotation options:
O - 90 Degrees
Shift + O = 45 Degrees
Alt + O = 15 Degrees
Shift + Alt + O = 1 Degree
Perfect this helps. maybe for future updates a ctrl+R to pop up a rotate icon would work nicely
Can I have access to test this? Would love to see how it works and give feedback.
Hi Doug, here is the link to Request Access to TEST Server