Back to zzTakeoff Community Channel LogoBug Reports
Bryan Kellenberger
26d 22h

Comparative Overlays Blurry After Update

Under Review

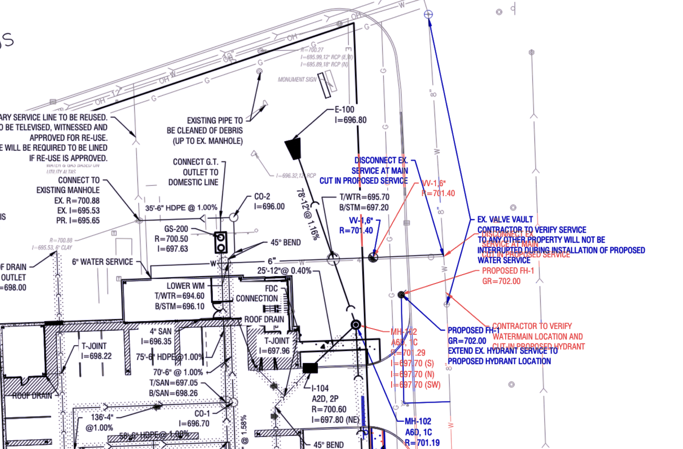
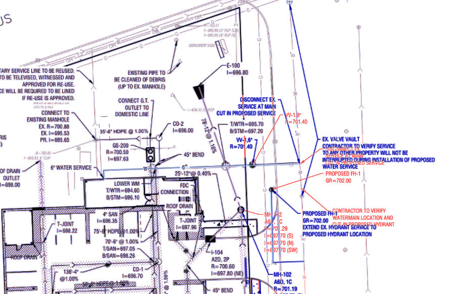
Hello, Would like to report some blurriness after the recent update.


The first pic was performed prior to the update.


Second pic was performed after the update.


1
You must be logged in to post replies. If you don't have an account you can signup here.